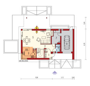
Földszint
1. Előszoba: 3.07 m² 
2. Folyosó + lépcső: 14.79 m²
3. Konyha: 9.47 m²
4. Spejz: 1.77 m²
5. Nappali + Étkező: 36.11 m²
6. Fürdő: 2.62 m²
7. Mosó konyha: 8.02 m²
8. Garázs: 19.66 m²
Földszint összesen (Garázzsal): 95.51 m²
Tetőtér
1. Folyosó: 9,30 m² 
2. Háló: 12,64 m²
3. Gardrób: 5,37 m²
4. Háló: 8,17 m²
5. Háló: 10,93 m²
6. Háló: 10,95 m²
7. Fürdő: 5,83 m²
8. Fürdő: 2,08 m²
9. Gardrób: 2,66 m²
Tetőtér összesen: 67,93 m²





